Property Details

9606 79 Avenue
Peace River (A2268919)

$290,000
3
2
1,076 ft²
Loading Listing...

Loan Term
Interest Rate
Loan Amount
Annual Tax
Ann. Insurance

* Amounts are estimates only. Final payment amounts may vary.

Description

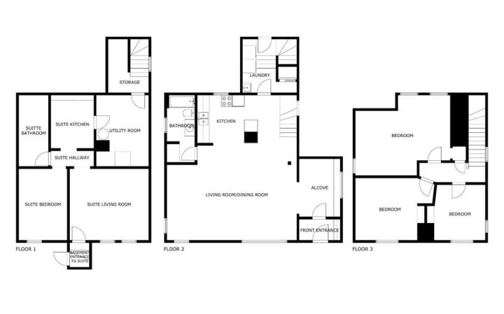
Well cared for home in Peace River's North end ready for new owners! This family home is nicely situated on a partially fenced yard. You will also find a double detached garage with floor drain and alley access. Inside the home you will find a freshly painted main level which is nicely set up with a bright eat in kitchen, spacious living room and 3 bedrooms and a 4 piece bathroom on the main level. The basement is complete with a wood burning fireplace in the family room, bonus room which you could continue to use as a games room or you could easily be converted into a 4th bedroom. This level also has a 3 piece bathroom, and a specious laundry room with lots of additional storage. In recent years the windows and doors have been replaced on the upper level and the shingles have been done on the home. Schedule an appointment to take a closer look at all this home has to offer! 360 video tour is now available in the media section. Floor plans are available in the photos section.

Property details

Basic Info

MLS® #
A2268919
Property Type:
Residential
Subtype:
Detached
Subdivision:
North End
Price
$290,000
Sale/Lease:
For Sale
Size:
1,076 sq.ft.
Bedrooms:
3
Bathrooms:
2
Year Built:
1976 (49 years old)

Building Info

Structure Type:
House
Building Style:
Bungalow
Garage:
Yes
Parking:
Double Garage Detached, Garage Faces Rear, Rear Drive
Fence:
Partial
Basement:
Full
Features:
Laminate Counters
Fireplaces:
1
Inclusions:
Air conditioner will be included - as is where is. seller has not used it for some time. Garage door opener will be included, remote will be included if replacement remote is received in time. Sprinkler system in flower bed included as is, lines were winterized after last use approx. 10 years ago.
Appliances:
Central Air Conditioner, Dishwasher, Dryer, Electric Stove, Refrigerator
Laundry:
In Basement
Exterior Features:
Private Yard
Patio/Porch Features:
Patio

Neighborhood Info

Nearby Amenities:
Playground, Schools Nearby

Lot / Land Info

Lot Size:
0.15 acres
Lot Dimensions:
Irregular lot
Lot Features:
Back Lane, Landscaped, Lawn
Zoning:
R

Materials & Systems

Roof:
Asphalt Shingle
Exterior:
Metal Siding
Floors:
Laminate, Linoleum
Foundation:
Poured Concrete
Heating:
Forced Air, Natural Gas
Cooling:
Central Air
Amenities:
Playground, Schools Nearby

Listing Info

Possession:
Immediate,Negotiable
Days on Market:
1
Your Agent
  • Derek Estabrook

    780-832-0996

    Email

    Ask About This Property
    • This site is protected by reCAPTCHA and the Google Privacy Policy and Terms of Service apply.
    Share This Listing
    Related Properties